1. 项目概况及监测目的
本项目位于地铁站出入口位置,因出入口外侧在进行施工,为监测施工对地铁出入口的影响,所以对地铁出入口进行沉降自动化监测。
对其自动化监测的目的及意义如下:
(1)通过监测地铁出入口的沉降情况,实时了解地铁出入口的结构健康,保证施工顺利进行,保障地铁出入口及人员安全。
(2)及时采集自动化监测数据,当数据异常时,能使地铁管理方迅速采取应急措施。
(3)将实时监测结果反馈施工单位,以进行合理施工安排。
2. 主要的监测点及数据要求
主要监测点:地铁出入口
数据要求:系统采集频率:30分钟/次。
3. 监测方案
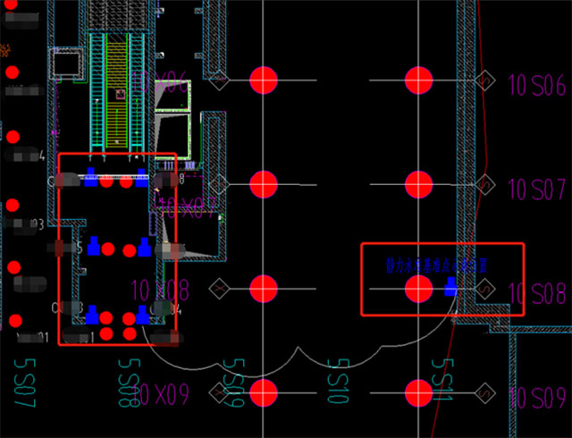
本项目共布设7个点位,6个监测点+1个基准点。监测点布设在出入口,基准点布设在墙板后。
4. 监测图纸

(蓝色标注为静力水准仪点位)
5. 项目投入主设备清单
设备 | 数量 | 设备 | 数量 |
磁致式静力水准仪 | 7 | 采集箱 | 1 |
6. 现场图片

Copyright © 2023 厦门忻德监测科技有限公司 All Rights Reserved. 闽ICP备 12005270号-4